Beschrijving
***English below***
Ruime gezinswoning met zonnige tuin en dakterras in De Aker
In een rustige en groene woonomgeving in de geliefde wijk De Aker ligt deze ruime en comfortabele gezinswoning. De woning beschikt over een voortuin, een zonnige achtertuin op het zuidwesten en maar liefst vier volwaardige slaapkamers.
Het huis is de afgelopen jaren gerenoveerd. Zo zijn onder andere de daken vernieuwd en is de gehele woning voorzien van kunststof kozijnen (2022/2023). In 2023 is de gevel opnieuw gevoegd en geïmpregneerd. Daarnaast beschikt de woning over energielabel A en zijn er zonnepanelen geplaatst (2023). Een ideale woning voor gezinnen die op zoek zijn naar ruimte, licht en duurzaamheid in een prettige leefomgeving.
Omgeving
De woning is gelegen aan Le Tourmalet, een rustige straat in een kindvriendelijke buurt met veel groen. In de directe omgeving zijn diverse speeltuinen, scholen en kinderopvangvoorzieningen aanwezig. Voor de dagelijkse boodschappen ligt winkelcentrum De Dukaat op korte afstand, met supermarkt, speciaalzaken en een gezondheidscentrum.
De bereikbaarheid is uitstekend. Zowel met de auto als met het openbaar vervoer zijn omliggende plaatsen eenvoudig te bereiken. Tramlijn 1 en de nabijgelegen uitvalswegen A4, A5, A9 en A10 zorgen voor goede verbindingen met onder andere Amsterdam, Amstelveen, Haarlem, Hoofddorp en Schiphol. In de straat is ruime parkeergelegenheid aanwezig.
Indeling
Begane grond
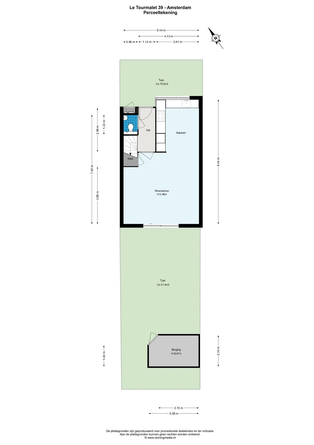
Via de entree komt u in de hal met toilet en toegang tot de meterkast (extern bereikbaar). De ruime woonkamer is gelegen aan de tuinzijde en voorzien van schuifpui naar de zonnige achtertuin.
De open keuken bevindt zich aan de voorzijde van de woning en is uitgerust met diverse inbouwapparatuur, een ruim werkblad en voldoende kastruimte.
Eerste verdieping
Op deze verdieping bevinden zich drie slaapkamers, waaronder een royale hoofdslaapkamer, ook uitstekend geschikt als kinder-, werk- of kleedkamer.
De badkamer is aan de voorzijde gelegen en beschikt over een inloopdouche, wastafelmeubel en toilet.
Tweede verdieping
Hier bevindt zich de vierde ruime slaapkamer met toegang tot het zonnige dakterras. Daarnaast is er een voorzolderruimte met de cv-installatie en aansluitingen voor wasmachine en droger en de omvormer voor de zonnepanelen.
Erfpacht
De woning is gelegen op erfpachtgrond van de gemeente Amsterdam en de erfpacht is al betaald tot 30 november 2043
Bijzonderheden:
- Ruime eengezinswoning (ca 106 m²)
- Bouwjaar 1994 4 slaapkamers
- Energielabel A
- Kunststof kozijnen in gehele huis (2022/2023)
- Gevel opnieuw gevoegd en geïmpregneerd (2023)
- Alle daken vernieuwd (2022/2023)
- 6 zonnepanelen (2023)
- Zonnige tuin (ZW) met achterom
- Dakterras (ZW)
- Voortdurende erfpacht afgekocht tot 2043
***English***
Spacious Family Home with Sunny Garden and Roof Terrace in De Aker
Situated in a quiet and green residential area in the popular De Aker neighbourhood, this spacious and comfortable family home offers a pleasant living environment. The property features a front garden, a sunny south-west facing rear garden and no fewer than four full-sized bedrooms.
The property has been renovated in recent years. As part of the renovation, the roofs were renewed and PVC window frames were installed throughout the entire property (2022/2023). In 2023, the façade was repointed and impregnated. In addition, the property has an energy label A and solar panels were installed in 2023.
An ideal home for families looking for space, natural light and sustainability in a friendly residential setting.
Surroundings
The property is located on Le Tourmalet, a quiet street in a child-friendly neighbourhood with plenty of greenery. Several playgrounds, schools and childcare facilities can be found in the immediate vicinity. For daily shopping, De Dukaat shopping centre is close by and offers a supermarket, specialist shops and a health centre.
Accessibility is excellent. Both by car and public transport, surrounding towns and cities are easily reached. Tram line 1 and the nearby motorways A4, A5, A9 and A10 provide convenient connections to Amsterdam, Amstelveen, Haarlem, Hoofddorp and Schiphol. Ample parking is available in the street.
Layout
Ground floor
The entrance leads into the hallway with a toilet and access to the meter cupboard (externally accessible). The spacious living room is located at the rear of the property and features sliding doors opening onto the sunny garden.
The open-plan kitchen is situated at the front of the house and is fitted with various built-in appliances, a generous worktop and ample storage space.
First floor
This floor comprises three bedrooms, including a generous main bedroom, which is also perfectly suitable as a children’s room, home office or dressing room.
The bathroom is located at the front and is equipped with a walk-in shower, washbasin unit and toilet.
Second floor
Here you will find the fourth spacious bedroom with access to the sunny roof terrace. There is also a landing area housing the central heating system, connections for a washing machine and dryer, and the inverter for the solar panels.
Ground Lease
The property is situated on leasehold land owned by the Municipality of Amsterdam. The ground lease has been paid in advance until 30 November 2043.
Key features:
- Spacious family home (approx. 106 m²)
- Built in 1994
- 4 bedrooms
- Energy label A
- PVC window frames throughout the property (2022/2023)
- Façade repointed and impregnated (2023)
- All roofs renewed (2022/2023)
- 6 solar panels (2023)
- Sunny south-west facing garden with rear access
- Roof terrace (south-west facing)
- Perpetual leasehold, prepaid until 2043