Beschrijving
**English below**
Unieke, 20 meter diepe, hoekwoning met patio én dakterras in het populaire Nieuw Sloten
Ben je op zoek naar een ruime, lichte en modern afgewerkte woning met veel privacy? Dan is deze bijzondere hoekwoning precies wat je zoekt. Met een woonoppervlakte van circa 118 m², drie (voorheen vier) slaapkamers, een centraal gelegen patio én een zonnig dakterras, biedt deze woning een unieke en comfortabele leefomgeving op een rustige locatie in het groene en kindvriendelijke Nieuw Sloten.
Ruimtelijk wonen met licht, rust en comfort
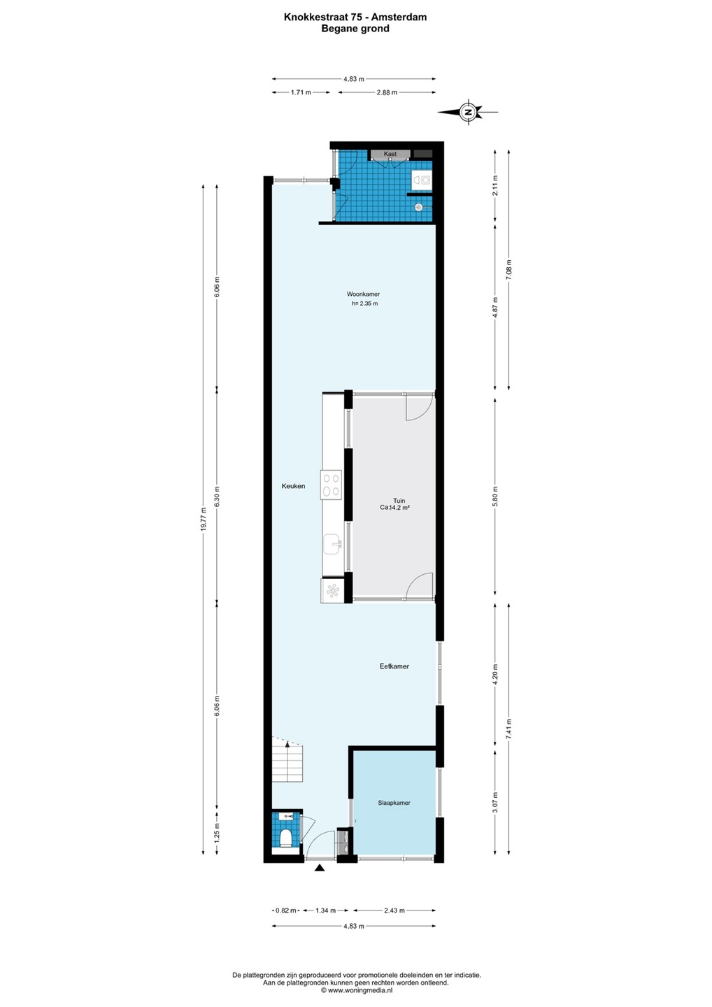
Wat deze woning écht onderscheidt, is de indrukwekkende diepte van maar liefst 20 meter. Dit zorgt voor een uitzonderlijk ruimtelijk gevoel en een speelse, open indeling. Bij binnenkomst valt direct de enorme diepte op waarbij de eetkamer, keuken en woonkamer in elkaar overlopen.
De woning is stijlvol afgewerkt met een moderne vloer, strakke wanden en plafonds in een rustige, moderne kleurstelling. Grote raampartijen en de centraal gelegen patio van circa 15 m² zorgen voor een prachtige lichtinval en een fijne verbinding tussen binnen en buiten. De patio is een oase van rust en privacy en is een heerlijke plek voor een kop koffie in de ochtend of een ontspannen moment gedurende de dag.
De woning is in 2020 gemoderniseerd en voorzien van hedendaags comfort, waaronder 2 badkamers, moderne keuken, vloerverwarming, airconditioning en 10 zonnepanelen.
Indeling
Begane grond:
De royale en lichte woonkamer biedt volop ruimte voor een comfortabele zithoek en een grote eettafel. De sfeervolle eethoek bevindt zich aan de voorzijde en staat in directe verbinding met de patio en het zonnige terras, waardoor binnen en buiten op een natuurlijke manier in elkaar overlopen.
De moderne keuken (2020) is een echte eyecatcher en is uitgevoerd met een indrukwekkend werkblad van bijna 6 meter lang, veel kastruimte en hoogwaardige inbouwapparatuur, waaronder een Quooker. De lengte en opstelling maken het een ideale plek voor kookliefhebbers én voor gezellige avonden met familie en vrienden.
Op deze verdieping bevindt zich tevens een extra (slaap)kamer, momenteel in gebruik als werkkamer, evenals een tweede badkamer. De woning beschikt bovendien over een praktische brede achterom met afsluitbaar hek.
Eerste verdieping:
De overloop geeft toegang tot twee ruime slaapkamers (voorheen drie) en een moderne badkamer met inloopdouche, strak sanitair en een rustige, tijdloze afwerking.
Vanuit één van de kamers is het zonnige dakterras bereikbaar, afgewerkt met houten vlonders en veel privacy, een heerlijke plek om te ontspannen en te genieten van de zon.
Ligging en bereikbaarheid
Knokkestraat 75 is gelegen in een rustige straat in het geliefde Nieuw Sloten. De wijk staat bekend om haar groene, veilige en kindvriendelijke karakter, met scholen, kinderopvang en sportvoorzieningen op loopafstand.
Voor de dagelijkse boodschappen ligt het Belgiëplein met supermarkten en speciaalzaken nabij en de strandje bij de Nieuwe Meer en het Vondelpark is op fietsafstand. De bereikbaarheid is uitstekend: tram 2 brengt je rechtstreeks naar het centrum en bus 369 biedt een snelle verbinding met Schiphol en Station Sloterdijk. Via de A4, A9 en A10 ben je bovendien snel onderweg.
Erfpacht
De woning is gelegen op erfpachtgrond van de gemeente Amsterdam. Het huidige tijdvak is afgekocht tot 31-08-2044. De overstap naar eeuwigdurende erfpacht is tijdig en onder gunstige voorwaarden vastgelegd.
Bijzonderheden
• Bouwjaar 1996
• Woonoppervlakte circa 118 m²
• In 2020 gemoderniseerd
• 3 slaapkamers (voorheen 4)
• 2 badkamers
• Luxe keuken (2020) met stenen werkblad en Quooker
• Patiotuin én zonnig dakterras
• Vloerverwarming op de begane grond
• Airconditioning
• CV-ketel (2020)
• 10 zonnepanelen
• Energielabel A
• Erfpacht afgekocht tot 2044, overstap naar eeuwigdurende erfpacht geregeld
• Oplevering in overleg, kan snel
Kortom: een sfeervolle, uitstekend onderhouden en verrassend ruime woning waar licht, comfort en moderne afwerking perfect samenkomen.
Interesse?
Ben je op zoek naar een bijzonder ruim huis waar je direct in kunt op een fijne plek in Amsterdam? Neem dan snel contact op voor een bezichtiging, we laten je deze woning graag zien.
**English**
Unique 20-metre-deep corner house with patio and roof terrace in popular Nieuw Sloten
Are you looking for a spacious, bright and modern home with plenty of privacy? Then this distinctive corner property could be exactly what you are looking for. With a living area of approximately 118 m², three (formerly four) bedrooms, a centrally positioned patio and a sunny roof terrace, this home offers a unique and comfortable living environment in a green and family-friendly area of Nieuw Sloten.
Spacious living with light, tranquillity and comfort
What truly sets this home apart is its impressive depth of no less than 20 metres. This creates an exceptional sense of space and a playful, open-plan layout. Upon entering, the remarkable depth is immediately noticeable, with the dining area, kitchen and living room flowing seamlessly into one another.
The property is stylishly finished with a modern floor, sleek walls and ceilings in a calm, contemporary colour scheme. Large windows and the centrally located patio of approximately 15 m² provide beautiful natural light and a pleasant connection between indoor and outdoor spaces. The patio offers a peaceful and private retreat, perfect for a morning coffee or a relaxing moment during the day.
The property was modernised in 2020 and equipped with contemporary comforts, including two bathrooms, a modern kitchen, underfloor heating, air conditioning and 10 solar panels.
Layout
Ground floor:
The spacious and bright living room offers ample space for a comfortable seating area and a large dining table. The inviting dining area is located at the front and connects directly to the patio and sunny terrace, allowing indoor and outdoor living to blend naturally.
The modern kitchen (2020) is a real eye-catcher, featuring an impressive worktop of nearly 6 metres, ample storage space and high-quality built-in appliances, including a Quooker tap. Its size and layout make it ideal for cooking enthusiasts as well as for hosting enjoyable evenings with family and friends.
This floor also includes an additional (bed)room, currently used as a home office, as well as a second bathroom. The property also benefits from a practical, wide rear access with a lockable gate.
First floor:
The landing provides access to two spacious bedrooms (formerly three) and a modern bathroom with a walk-in shower, contemporary sanitary fittings and a calm, timeless finish.
From one of the rooms, you can access the sunny roof terrace, finished with wooden decking and offering plenty of privacy, a wonderful place to relax and enjoy the sun.
Location and accessibility
Knokkestraat 75 is situated in a quiet street in the sought-after Nieuw Sloten district. The area is known for its green, safe and family-friendly character, with schools, childcare facilities and sports amenities within walking distance.
For daily shopping, Belgiëplein—with supermarkets and speciality shops—is nearby, and the beaches at the Nieuwe Meer and also the Vondelpark are at cycling distance. Accessibility is excellent: tram 2 takes you directly to the city centre, while bus 369 offers a fast connection to Schiphol Airport and Sloterdijk Station. The A4, A9 and A10 motorways are also easily accessible.
Ground lease (erfpacht)
The property is situated on leasehold land owned by the Municipality of Amsterdam. The current lease period has been paid off until 31 August 2044. The transition to perpetual leasehold has already been arranged under favourable conditions.
Key features
• Built in 1996
• Living area approx. 118 m²
• Modernised in 2020
• 3 bedrooms (formerly 4)
• 2 bathrooms
• Luxury kitchen (2020) with stone worktop and Quooker
• Patio garden and sunny roof terrace
• Underfloor heating on the ground floor
• Air conditioning
• Central heating boiler (2020)
• 10 solar panels
• Energy label A
• Leasehold paid off until 2044; switch to perpetual leasehold arranged
• Completion in consultation, can be quick
In short: a charming, well-maintained and surprisingly spacious home where light, comfort and modern finishes come together perfectly.
Interested?
Are you looking for a particularly spacious home, ready to move into, in a great location in Amsterdam? Then get in touch today to arrange a viewing, we would be delighted to show you around.