Beschrijving
***English below***
Heerlijk licht appartement met twee balkons in Nieuw Sloten
Op een fijne en centrale locatie in de geliefde wijk Nieuw Sloten ligt dit goed onderhouden en licht appartement van ca. 85 m². De woning beschikt over twee ruime slaapkamers (met mogelijkheid tot een derde), twee balkons én een vrij uitzicht op het groen. De erfpacht is bovendien eeuwigdurend afgekocht en de woning heeft energielabel A.
Ligging
Het appartement bevindt zich op de tweede verdieping van een verzorgd complex met lift. De ligging is ideaal, op loopafstand van winkelcentrum Belgiëplein en tramhalte lijn 2 richting centraal station via het Leidseplein, het museumplein en de Dam en op korte fietsafstand van Station Lelylaan, het Hoofddorpplein, het Vondelpark en de Zuidas. Het pittoreske oude dorp Sloten is vlakbij. Heel handig is dat de hoofdingang van Schiphol met bus 369 op 15 min afstand ligt, fijn voor vakantie of als u veel moet reizen Ook recreatiegebieden zoals de Sloterplas, de Nieuwe Meer en het Amsterdamse Bos zijn nabij.
Nieuw Sloten staat bekend als een groene, kindvriendelijke en sociaal veilige buurt.
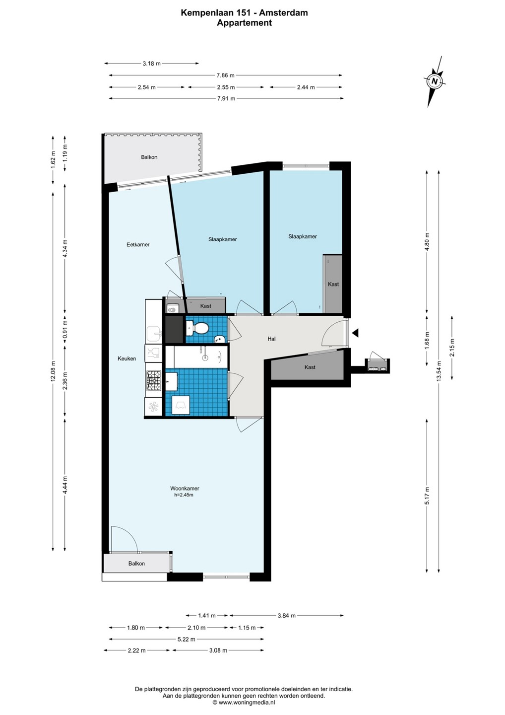
Indeling
Via de centrale, afgesloten entree met bellentableau bereikt u per lift of trap de woning. Bij binnenkomst komt u in de hal met garderoberuimte, meterkast en een toilet met fonteintje. Vanuit de hal heeft u toegang tot alle vertrekken.
De twee slaapkamers zijn beide ruim en licht. De tweede slaapkamer beschikt over een extra raam en een schuifdeur naar het balkon. Indien gewenst is het mogelijk een derde slaapkamer te realiseren.
De badkamer is betegeld en voorzien van een ligbad met douche, wastafelmeubel en aansluitingen voor wasmachine en droger.
De royale woonkamer met loggia biedt een prettige lichtinval en staat in directe verbinding met de keuken. De keuken is uitgevoerd in een witte kleurstelling en voorzien van diverse inbouwapparatuur, waaronder een 4-pits kookplaat, vaatwasser en koel-/vriescombinatie.
Aansluitend bevindt zich een aparte ruimte die ideaal is als eetkamer. Deze zonnige ruimte ligt aan de tuinkant en geeft toegang tot het ruime balkon op het zuiden met vrij uitzicht op het groen.
In de onderbouw beschikt de woning over een ruime, eigen berging.
Vereniging van Eigenaren (VvE)
De Vereniging van Eigenaren is actief en wordt professioneel beheerd door Munnik VvE Beheer B.V. Het bestuur is extern belegd en wordt ondersteund door een VvE-commissie. Jaarlijks vindt een Algemene Ledenvergadering plaats. De VvE omvat 190 woningen en 50 parkeergarages. Er is een reservefonds aanwezig en het onderhoud wordt uitgevoerd conform een meerjarenonderhoudsplan (MJOP).
Binnen de VvE lopen trajecten gericht op verdere optimalisatie van beheer, organisatie en onderhoud. Mede hierdoor werkt de vve aan juridische e/a complicaties/vraagstukken en de oplossingen hiervan. Tevens is tijdens de Algemene Ledenvergadering van 17 maart 2026 gesproken over toekomstige invulling van bestuur en beheer. Voor de komende periode wordt onderhoud uitgevoerd conform MJOP. Daarnaast kunnen besluiten worden genomen over aanvullende werkzaamheden, waaronder mogelijk onderhoud aan het dak, waarbij een eventuele eenmalige bijdrage van toepassing kan zijn. Er zijn geen schulden of leningen binnen de VvE. Nadere informatie is beschikbaar in de documentatie.
Erfpacht
De erfpacht is eeuwigdurend afgekocht. Dat betekent dat u nu en in de toekomst geen kosten heeft voor erfpacht.
Bijzonderheden:
• Bouwjaar: 1993
• Woonoppervlakte: ca. 85 m²
• Energielabel A
• Twee slaapkamers (derde mogelijk)
• Twee balkons (zuid én noord)
• Lift
• Berging in de onderbouw
• Openbaar vervoer en winkels op loopafstand
• Servicekosten € 165 onlangs naar 198,- per maand
• Erfpacht eeuwigdurend afgekocht
• Oplevering in overleg
Kortom:
Een licht, ruim en praktisch ingedeeld appartement met twee balkons, gelegen op een uitstekende locatie met alle voorzieningen binnen handbereik én erfpacht eeuwigdurend afgekocht.
***English***
Bright and spacious apartment with two balconies in Nieuw Sloten
Situated in a pleasant and central location in the popular Nieuw Sloten neighbourhood, this well-maintained and bright apartment of approximately 85 m² offers comfortable living. The property features two generously sized bedrooms (with the possibility to create a third), two balconies, and an unobstructed view over greenery. The ground lease has been bought off in perpetuity, and the apartment has an energy label A.
Location
The apartment is located on the second floor of a well-maintained building with an elevator. The location is ideal, within walking distance of the Belgiëplein shopping center and tram line 2, which provides direct access to Central Station via Leidseplein, Museumplein, and Dam Square. It is also a short bike ride to Lelylaan Station, Hoofddorpplein, Vondelpark, and the Zuidas. The picturesque old village of Sloten is nearby. Very convenient is that Schiphol Airport’s main entrance can be reached in just 15 minutes by bus 369, ideal for holidays or frequent travel. Recreational areas such as the Sloterplas, the Nieuwe Meer, and the Amsterdamse Bos are also close by. Nieuw Sloten is known as a green, family-friendly, and socially safe neighborhood.
Layout
Through the central, secure entrance with intercom system, you can reach the apartment by lift or stairs. Upon entering, you arrive in the hallway with wardrobe space, meter cupboard, and a separate toilet with washbasin. The hallway provides access to all rooms.
Both bedrooms are spacious and bright. The second bedroom benefits from an additional window and a sliding door leading to the balcony. If desired, it is possible to create a third bedroom.
The bathroom is tiled and equipped with a bathtub with shower, a washbasin unit, and connections for a washing machine and dryer.
The generous living room with loggia enjoys plenty of natural light and is directly connected to the kitchen. The kitchen is finished in white and fitted with various built-in appliances, including a four-burner hob, dishwasher, and fridge-freezer combination.
Adjacent to the kitchen is a separate space that is ideal as a dining room. This sunny area is located on the garden side and provides access to the spacious south-facing balcony with unobstructed views of greenery.
On the ground floor, the property includes a large private storage room.
Owners’ Association (VvE)
The Owners’ Association is active and professionally managed by Munnik VvE Beheer B.V. The board is externally appointed and supported by a VvE committee. An annual general meeting is held. The VvE consists of 190 apartments and 50 parking garages. There is a reserve fund in place, and maintenance is carried out in accordance with a long-term maintenance plan (MJOP).
Within the VvE, ongoing processes are focused on further optimisation of management, organisation, and maintenance. This includes addressing legal and administrative matters and working towards solutions. During the General Members’ Meeting of 17 March 2026, future arrangements for governance and management were also discussed. For the coming period, maintenance will be carried out in line with the MJOP. In addition, decisions may be taken regarding additional works, including potential roof maintenance, which could involve a one-off contribution. The VvE has no debts or loans. Further information is available in the documentation.
Ground lease
The ground lease has been bought off in perpetuity, meaning there are no current or future costs associated with it.
Key features:
• Year of construction: 1993
• Living area: approx. 85 m²
• Energy label A
• Two bedrooms (third possible)
• Two balconies (south and north)
• Lift
• Private storage in the basement
• Public transport and shops within walking distance
• Service charges: recently increased from €165 to €198 per month
• Ground lease bought off in perpetuity
• Completion in consultation
In summary:
A bright, spacious, and well-laid-out apartment with two balconies, located in an excellent area with all amenities within easy reach, and with the added benefit of a perpetually prepaid ground lease.