Beschrijving
**English below
Fantastisch wonen in Amsterdam Nieuw Sloten! Erfpacht eeuwigdurend afgekocht.
Op de eerste verdieping vind je dit heerlijke 3-kamer appartement van 85 m² met een zonnig balkon op het zuiden. Eventueel kun je eenvoudig een derde slaapkamer creëren. De woning heeft energielabel A. Gelegen in de populaire wijk Nieuw Sloten, op een toplocatie direct bij winkelcentrum Belgiëplein.
Woonomgeving en bereikbaarheid
Op loopafstand zijn uitstekende OV-verbindingen richting onder andere Schiphol en Amsterdam Centraal. Met de auto zit je binnen een paar minuten op de A4, A5, A9 of A10.
De wijk staat bekend om de veilige en kindvriendelijke leefomgeving, goede basisscholen, kinderdagverblijven en een breed aanbod aan sportfaciliteiten zoals hockey, voetbal, judo, rugby, squash, golf en wielrennen. Voor je dagelijkse boodschappen, restaurants en andere voorzieningen hoef je alleen maar naar het Belgiëplein te lopen.
In je vrije tijd fiets je zo naar het Vondelpark of geniet je van de natuur bij De Oeverlanden en de strandjes aan de Nieuwe Meer. Ook natuurgebied De Vrije Geer, onderdeel van de ecologische Groene As tussen Amstelland en Spaarnwoude, ligt vlakbij.
Indeling
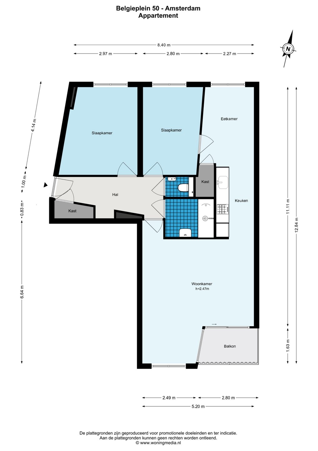
Je komt het complex binnen via de centrale hal. Met de lift of de trap bereik je de eerste verdieping. De meterkast bevindt zich aan de buitenzijde. Achter de voordeur vind je een ruime hal met ingebouwde garderobekast. Vanuit hier heb je toegang tot alle vertrekken, waaronder een apart toilet en een badkamer met ligbad en wastafel.
De twee royale slaapkamers liggen aan de koele noordzijde van het appartement. Aan de andere kant van de hal kom je in de lichte en ruime woonkamer. Via de schuifpui stap je zo het zonnige balkon op, gelegen op het zuiden.
De moderne keuken (geplaatst in 2025) ligt centraal in de woonkamer tussen het zitgedeelte en de eetkamer. Deze is voorzien van diverse inbouwapparatuur zoals een koel/diepvrieskast, combimagnetron, vaatwasser en afzuigkap.
Erfpacht
De erfpacht is eeuwigdurend afgekocht, dus geen kosten meer in de toekomst.
Bijzonderheden
• Totale woonoppervlakte: circa 85 m² (conform NEN-meetrapport)
• Bouwjaar 1994
• Erfpacht eeuwigdurend afgekocht
• 2 slaapkamers, 3 slaapkamers mogelijk
• Balkon van circa 4,5 m² op het zuiden
• Eigen fietsenberging van circa 3,5 m²
• Energielabel A
• Actieve en gezonde VvE, maandelijkse bijdrage ca. € 198,50
• Oplevering kan snel
Ben je op zoek naar een ruim en licht appartement met 2 of 3 slaapkamers én een zonnig balkon in Amsterdam? Maak dan snel een afspraak voor een bezichtiging. We laten je deze fijne woning graag zien!
**English
Absolutely fantastic living in Amsterdam Nieuw Sloten! Ground lease paid off in perpetuity.
On the first floor, you’ll find this lovely 3-room apartment of 85 m² with a sunny south-facing balcony. A third bedroom can easily be created if desired. The property has an energy label A and is located in the popular Nieuw Sloten neighbourhood, in a prime location right by the Belgiëplein shopping centre.
Neighbourhood and accessibility
Within walking distance, you’ll find excellent public transport connections to Schiphol, Amsterdam Central, and other key destinations. By car, you can reach the A4, A5, A9, or A10 motorways within minutes.
The area is known for its safe and family-friendly environment, with good primary schools, childcare facilities, and a wide range of sports amenities including hockey, football, judo, rugby, squash, golf, and cycling. For your daily groceries, restaurants, and other conveniences, simply head over to Belgiëplein.
In your free time, you can cycle to the Vondelpark or enjoy nature at De Oeverlanden or the small beaches along the Nieuwe Meer. Nature reserve De Vrije Geer—part of the ecological Green Axis connecting Amstelland and Spaarnwoude—is also nearby.
Layout
You enter the complex via a central hall. The first floor is accessible by lift or stairs. The meter cupboard is located outside the apartment. Behind the front door, you’ll find a spacious hallway with a built-in wardrobe. From here, you have access to all rooms, including a separate toilet and a bathroom with bathtub and washbasin.
The two generously sized bedrooms are situated on the cooler north side of the apartment. On the other side of the hallway is the bright and spacious living room. The sliding doors open onto the sunny south-facing balcony.
The modern kitchen (installed in 2025) is centrally located between the lounge and dining area and includes built-in appliances such as a fridge/freezer, combi-microwave, dishwasher, and extractor hood.
Ground lease
The ground lease has been paid off in perpetuity—so no future costs.
Key features
• Total living area: approx. 85 m² (in accordance with NEN measurement report)
• Year of construction: 1994
• Ground lease paid off in perpetuity
• 2 bedrooms, with potential for a 3rd
• South-facing balcony of approx. 4.5 m²
• Private bike storage of approx. 3.5 m²
• Energy label A
• Active and financially sound homeowners’ association (VvE), monthly contribution approx. €198.50
• Quick delivery possible
Are you looking for a spacious and bright apartment with 2 or 3 bedrooms and a sunny balcony in Amsterdam? Then don’t wait—schedule a viewing today. We’d love to show you around!