Beschrijving
**English below**
Stijlvol gezinshuis met tuin aan het water en vrij uitzicht in Amsterdam
Op een van de charmante wooneilanden van het geliefde Amsterdam Nieuw Sloten, met uitzicht op het historische dorp Sloten en natuurgebied De Vrije Geer, staat dit onder architectuur (Wilma Kingma) ontworpen gezinshuis met een prachtig aangelegde tuin direct aan het water.
Hier woon je in alle rust, met veel privacy en een schitterend uitzicht over het groen, en dat alles op korte afstand van de binnenstad.
Woonbeleving
Deze woning combineert moderne architectuur, duurzaamheid en natuur op een perfecte manier.
De leefruimte is voorzien van een moderne gietvloer en de grote raampartijen die zorgen voor een overvloed aan licht. De ruime woonkamer staat in directe verbinding met de brede tuin aan het water, een heerlijke plek om te ontspannen en te genieten van de zon, het groen en het vrije uitzicht. De moderne open keuken is uitgerust met hoogwaardige inbouwapparatuur en vormt het hart van het huis.
Dankzij de hybride warmtepomp en zonnepanelen is deze woning niet alleen energiezuinig, maar ook volledig klaar voor de toekomst. Een unieke woonplek die comfort en duurzaamheid moeiteloos verenigt.
Indeling en functionaliteit
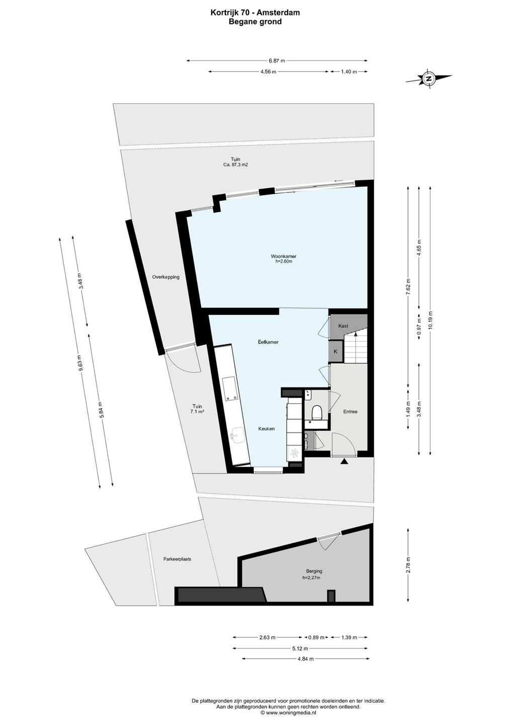
• Begane grond: royale woonkamer, open keuken en apart toilet.
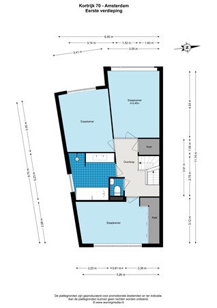
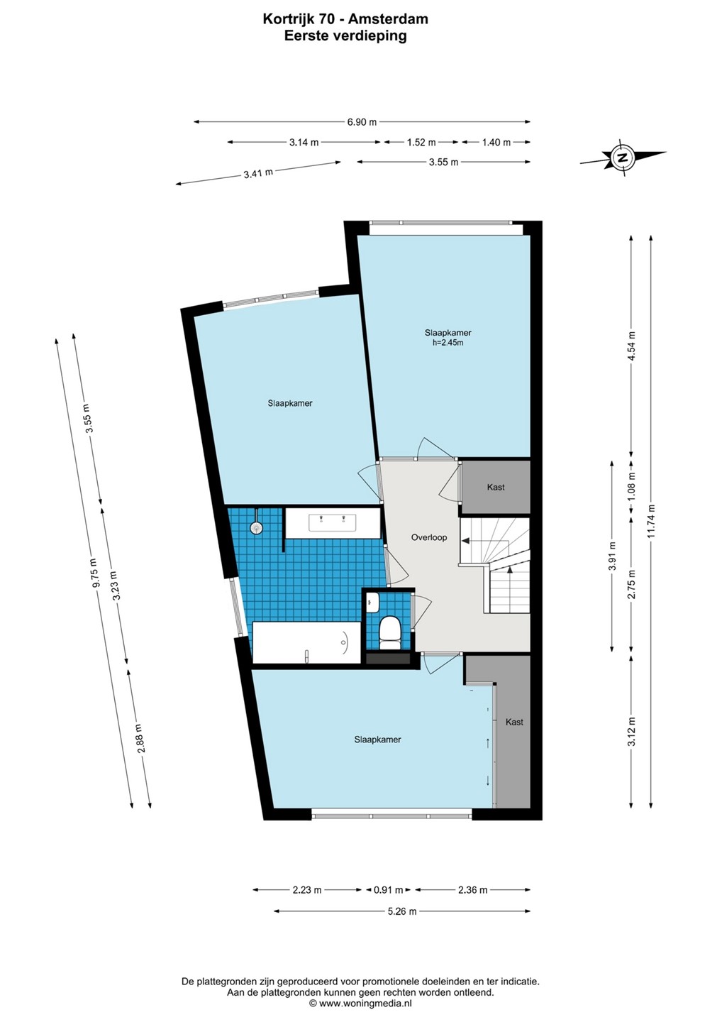
• Eerste verdieping: overloop met toegang tot drie ruime slaapkamers, een luxe badkamer met ligbad, inloopdouche en dubbele wastafel, en een separaat tweede toilet.
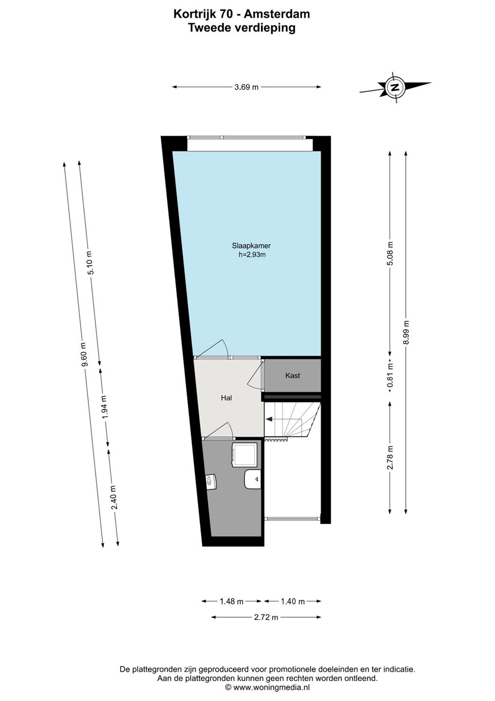
• Tweede verdieping: een vierde ruime slaapkamer en een bergruimte, met de mogelijkheid om hier een tweede badkamer te realiseren.
• Buiten: op eigen terrein een ruime carport en een berging van maar liefst 10 m².
De slimme indeling maakt het huis bijzonder geschikt voor gezinnen, thuiswerkers of iedereen die houdt van ruimte, licht en privacy.
Ligging
De woning ligt in een veilige en kindvriendelijke wijk met volop voorzieningen in de buurt:
speelpleintjes, scholen, winkels, horeca en sportfaciliteiten bevinden zich op loop- of fietsafstand.
Dankzij de uitstekende verbindingen met het openbaar vervoer en de nabijgelegen uitvalswegen ben je binnen enkele minuten in het centrum van Amsterdam of op Schiphol.
Natuurliefhebbers kunnen hun hart ophalen bij de Nieuwe Meer en in natuurpark De Vrije Geer, waar wandelen en fietsen pure ontspanning bieden.
Erfpacht
De woning staat op erfpachtgrond van de gemeente Amsterdam.
De voortdurende erfpacht is afgekocht tot en met november 2043, en de eeuwigdurende erfpacht is reeds vastgeklikt onder gunstige voorwaarden.
Onderhoud eiland
Het eiland wordt onderhouden door een actieve Coöperatieve Exploitatievereniging, die zorgt voor het onderhoud en de verzekering van de gemeenschappelijke delen, zoals het plein en de brug. Zo blijft het eiland netjes, verzorgd en veilig.
Bijzonderheden op een rij
• Woonoppervlakte: 160 m²
• Uniek, modern ontwerp, onder architectuur gebouwd (Wilma Kingma)
• Zonnige tuin aan het water met vrij uitzicht
• Vier ruime slaapkamers
• Luxe badkamer met ligbad, inloopdouche en dubbele wastafel
• Moderne open keuken met hoogwaardige inbouwapparatuur
• Carport en grote schuur (10 m²) op eigen terrein
• Hybride warmtepomp en 12 zonnepanelen
• Erfpacht afgekocht tot november 2043
• Eeuwigdurende erfpacht vastgeklikt onder gunstige voorwaarden
Een woning met karakter, rust en toekomstwaarde
Dit energiezuinige gezinshuis biedt alles wat het moderne stadsleven zeldzaam maakt: ruimte, water, duurzaamheid en stilte, met de dynamiek van Amsterdam binnen handbereik.
**English**
Stylish Family Home with Garden on the Water and Unobstructed Views in Amsterdam
On one of the charming residential islands of the popular Amsterdam Nieuw Sloten, overlooking the historic village of Sloten and the De Vrije Geer nature reserve, you will find this architect-designed (Wilma Kingma) family home with a beautifully landscaped garden directly on the water.
Here, you live in peace and privacy, surrounded by greenery, while being just a short distance from the city centre.
Living Experience
This home perfectly combines modern architecture, sustainability, and nature.
The living area features a sleek poured concrete floor and large windows that flood the space with natural light. The spacious living room opens directly onto the wide garden along the water — a wonderful place to relax and enjoy the sun, the greenery, and the open view. The modern open kitchen, equipped with high-quality built-in appliances, forms the heart of the home.
Thanks to the hybrid heat pump and solar panels, the house is not only energy-efficient but also fully future-proof — a unique living environment that effortlessly blends comfort and sustainability.
Layout and Functionality
• Ground floor: spacious living room, open kitchen, and separate toilet.
• First floor: landing giving access to three generous bedrooms, a luxurious bathroom with bathtub, walk-in shower and double washbasin, and a separate second toilet.
• Second floor: a fourth spacious bedroom and a storage area, with the option to create a second bathroom.
• Outside: private carport and a large storage shed of approximately 10 m².
The smart layout makes this home ideal for families, remote workers, or anyone who appreciates space, light, and privacy.
Location
The property is situated in a safe, child-friendly neighbourhood with plenty of amenities nearby:
playgrounds, schools, shops, cafés, restaurants, and sports facilities are all within walking or cycling distance.
With excellent connections to public transport and major roads, you can reach Amsterdam city centre or Schiphol Airport within minutes.
Nature lovers will enjoy the nearby Nieuwe Meer lake and De Vrije Geer nature park — perfect for walking, cycling, and unwinding in a natural setting.
Leasehold
The property is located on leasehold land owned by the Municipality of Amsterdam.
The current leasehold has been paid off until November 2043, and the perpetual leasehold has already been fixed under favourable conditions.
Maintenance of the Island
The island is managed by an active Cooperative Maintenance Association, responsible for the upkeep and insurance of shared areas such as the square and the bridge. This ensures that the island remains well-maintained, tidy, and safe.
Key Features
• Living area: 160 m²
• Unique, modern architectural design (Wilma Kingma)
• Sunny garden on the water with unobstructed views
• Four spacious bedrooms
• Luxurious bathroom with bathtub, walk-in shower, and double washbasin
• Modern open kitchen with high-end built-in appliances
• Private carport and large storage shed (10 m²)
• Hybrid heat pump and 12 solar panels
• Leasehold paid off until November 2043
• Perpetual leasehold fixed under favourable conditions
A Home with Character, Tranquillity and Long-Term Value
This energy-efficient family home offers everything that has become rare in modern city life: space, water, sustainability, and peace — all with the vibrancy of Amsterdam within easy reach.