Beschrijving

***English below***

Ruime woning met verrassende indeling, zonnig balkon en praktische extra’s. Snel beschikbaar!

Deze ruime woning in Amsterdam Nieuw Sloten biedt een unieke speelse indeling, duurzaamheid en comfort. Ideaal voor gezinnen, thuiswerkers of iedereen die op zoek is naar een huis dat net even anders is.

Wat maakt deze woning bijzonder?
•	Begane grond: Een ruime slaapkamer, een luxe badkamer en een multifunctionele ruimte die perfect is als praktijk, kantoor of hobbyruimte. Het afgesloten achterpad biedt extra privacy en veiligheid.
•	Eerste verdieping: Hier bevindt zich de lichte woonkamer en een gezellige woonkeuken. Dankzij grote ramen geniet je van veel natuurlijk licht. Het zonnige balkon benut je het hele jaar, want dankzij een glazen schuifwand is het in een handomdraai een fraaie serre.
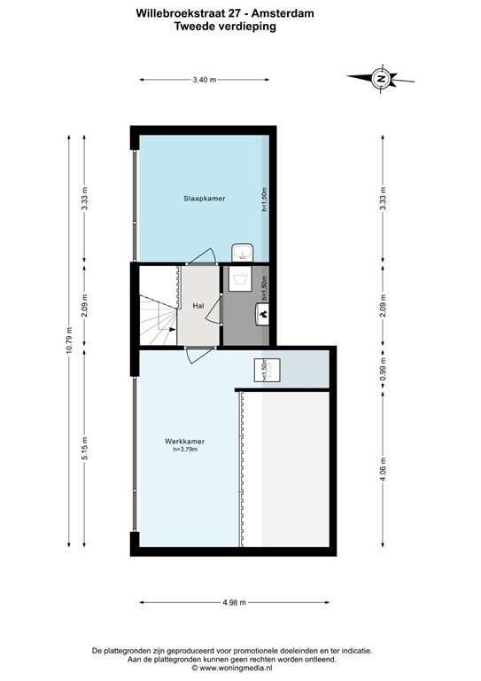
•	Tweede verdieping: Een ruime slaapkamer met fontein en een ruime vide, die nu is ingericht als kantoor. De vide biedt volop mogelijkheden, van een extra slaapkamer tot een creatieve invulling: alles is mogelijk.

Eeuwigdurend afgekochte erfpacht
Een groot pluspunt van deze woning is de erfpacht, die al eeuwigdurend is afgekocht. Dit betekent geen extra maandelijkse lasten en volledige gemoedsrust over de eigendomsrechten.

Duurzaam en energiezuinig
Met energielabel A+, 20 zonnepanelen, nieuwe kunststof kozijnen met HR++-glas en airco is dit huis klaar voor de toekomst. Je profiteert niet alleen van lagere energiekosten, maar ook van een comfortabel en milieuvriendelijk thuis.

Woonomgeving en bereikbaarheid
De woning ligt in de groene, rustige en kindvriendelijke wijk Nieuw Sloten. Openbaar vervoer is binnen handbereik (tram 2 naar Amsterdam CS en bus 369 naar Schiphol) en de A4, A9 en A10 zijn gemakkelijk bereikbaar. Het Vondelpark ligt op slechts 10 minuten fietsen en het nabijgelegen natuurgebied biedt volop mogelijkheden om te genieten van de natuur, zoals de Oeverlanden en de strandjes van De Nieuwe Meer. Nieuw Sloten staat bekend om zijn veilige omgeving, vele speelvoorzieningen, goede scholen, kinderdagverblijven en sportmogelijkheden zoals hockey, voetbal, golf, rugby, judo, squash en manege. Het winkelcentrum Belgiëplein biedt eetgelegenheden en winkels voor de dagelijkse boodschappen.

Kenmerken
•	Woonoppervlakte ca. 123 m² (NEN2580 meetrapport aanwezig)
•	Bouwjaar 1996
•	3 royale slaapkamers 
•	Luxe badkamer en een apart tweede toilet
•	Royaal balkon op het zuiden (afsluitbaar met glazen schuifwand)
•	Energielabel A+
•	Nieuwe kunststof kozijnen
•	HR++ glas
•	20 zonnepanelen
•	Eeuwigdurend afgekochte erfpacht
•	Mogelijkheid voor praktijk aan huis
•	Oplevering in overleg, kan snel
•	Notariskeuze voor koper volgens het Model Ring Amsterdam

Laat je verrassen door deze unieke woning en ervaar zelf de ruimte, comfort en praktische indeling. Maak snel een afspraak voor zorgeloos wonen.

***English:
Large home with a unique layout, sunny balcony, and practical extras. Available soon!

This specious house in Amsterdam Nieuw Sloten offers a unique layout, sustainability, and comfort. Perfect for families, remote workers, or anyone seeking a property that stands out.

What makes this home special?
•	Ground floor: A spacious bedroom, a luxurious bathroom, and a versatile room, ideal as a practice, office, or hobby space. The private, enclosed back access ensures extra security and convenience.
•	First floor: Here, you’ll find the bright living room and a welcoming kitchen-diner. Large windows flood the space with natural light. The sunny south-facing balcony can be enjoyed year-round; with its glass sliding doors, it transforms into a cosy conservatory in no time.
•	Second floor: A spacious bedroom with a washbasin and a large mezzanine, currently set up as an office. The mezzanine offers endless possibilities, from creating an extra bedroom to customising it as a creative space.

Perpetually bought-off leasehold
One of this property’s advantages is the perpetually bought-off leasehold, meaning no extra monthly costs and complete peace of mind regarding ownership.

Sustainable and energy-efficient
With an A+ energy label, 20 solar panels, new UPVC window frames with HR++ glazing, and air conditioning, this home is future-proof. You’ll benefit from lower energy costs while enjoying a comfortable and eco-friendly living environment.
Living environment and accessibility

The home is located in the green, peaceful, and child-friendly Nieuw Sloten neighbourhood. Public transport is easily accessible (tram 2 to Amsterdam Central Station and bus 369 to Schiphol), and the A4, A9, and A10 motorways are nearby. The Vondelpark is just a 10-minute bike ride away, and the nearby nature reserves, such as De Oeverlanden and the beaches of De Nieuwe Meer, offer plenty of outdoor activities. Nieuw Sloten is known for its safe environment, numerous playgrounds, excellent schools, childcare facilities, and sports options, including hockey, football, golf, rugby, judo, squash, and horse riding. The Belgiëplein shopping centre offers dining options and shops for your daily needs.

Key features
•	Living area approx. 123 m² (NEN2580 measurement report available)
•	Built in 1996
•	3 spacious bedrooms
•	Luxury bathroom and a separate second toilet
•	Large south-facing balcony (enclosed with glass sliding doors)
•	Energy label A+
•	New UPVC window frames
•	HR++ glazing
•	20 solar panels
•	Perpetually bought-off leasehold
•	Potential for a home practice
•	Flexible completion, available quickly
•	Notary selection for the buyer according to the Amsterdam Model Ring

Be amazed by this unique property and experience its space, comfort, and practical layout for yourself. Schedule a viewing now for stress-free living!

Kenmerken