Beschrijving

***English below
Ruim 4-kamerappartement met zonnig balkon en prachtig uitzicht op de Sloterplas
Op de 7e verdieping van een goed onderhouden complex ligt dit lichte en ruime 4-kamerappartement van ca. 78 m². Geniet van een zonnig balkon op het zuiden, een weids uitzicht en een ruime berging. Met een lift en een gunstige ligging is dit appartement perfect voor wie wil wonen in Amsterdam met alle voorzieningen binnen handbereik en uitstekende bereikbaarheid. 

Erfpacht
De erfpachtkosten  tot 2037 zijn € 91,20 per jaar. De overstap naar eeuwigdurende erfpacht is gemaakt tegen gunstige voorwaarden en in 2022 vastgeklikt voor € 98,47 per jaar (wordt jaarlijks geïndexeerd)  

Indeling
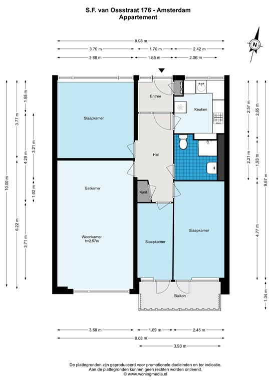
Via de gezamenlijke entree met camerabewaking en elektronische toegangsbeveiliging bereikt u het appartement per lift of trap. U komt het appartement binnen in een afgesloten hal die toegang biedt tot de royale gang met toegang naar tot alle ruimtes:
•	Woonkamer:  Royale leefruimte van ca. 22 m² met vrij uitzicht
•	Keuken:  Gelegen aan de noordzijde met fantastisch uitzicht op de Sloterplas
•	Balkon:  Ruim en zonnig balkon op het zuiden waar u heerlijk kunt ontspannen
•	Slaapkamers:  Drie fijne slaapkamers van ca. 6 m², 12 m² en 15 m²
•	Badkamer:  Voorzien van een douche, toilet en wastafel
•	Extra  opbergruimte: Grote berging op de  begane grond
•	Verwarming  & isolatie: Stadsverwarming  en deels HR++ isolatieglas 

Locatie & omgeving
De ligging is ideaal: op loopafstand van de Sloterplas en het Sloterpark, waar u kunt wandelen, sporten of ontspannen. Hardlopers kunnen het bekende 6 km lange ‘rondje Sloterplas’ lopen. In de buurt vindt u sportclubs, zwembad Sloterparkbad en fitnesscentra. Voor uw boodschappen en meer kunt u terecht in winkelcentrum Osdorpplein, waar u een uitgebreid winkelaanbod, diverse horecagelegenheden en theater De Meervaart vindt.

De bereikbaarheid is uitstekend:
•	Openbaar  vervoer (tram, metro, bus) direct naar het centrum of Schiphol
•	Met  de fiets bent u binnen 15 minuten in het Vondelpark
•	Via  de A4, A9 en A10 bent u snel de stad in en uit
•	Parkeren  kan in de buurt zonder lange wachttijd voor een vergunning

Bijzonderheden
•	Ruim en licht appartement (ca. 78 m², NEN-meetrapport aanwezig)
•	Eigen ruime berging op de begane grond
•	Erfpacht € 91,20 p.j.- tot 2037 - Eeuwigdurend vastgeklikt in 2022 (€ 98,47 per jaar)
•	Deels HR++ isolatieglas
•	Actieve en financieel gezonde VvE Servicekosten: €239,40 per maand
•	Voorschot stookkosten (stadsverwarming): €113,50 per maand
•	Oplevering kan snel

Bent u op zoek naar een appartement met 3 slaapkamers en met een schitterend uitzicht? Plan dan snel een bezichtiging!

***English:
Spacious 4-Bedroom Apartment with Sunny Balcony and Stunning Views of Sloterplas
Located on the 7th floor of a well-maintained complex, this bright and spacious 4-room apartment of approx. 78 m² offers living with breathtaking views. 
Enjoy a south-facing balcony, a private storage room and the convenience of a lift. With excellent transport links and all amenities within easy reach, this apartment is ideal for those seeking a light and airy home in Amsterdam. 

Leasehold
Leasehold until 2037 is € 91,20 per year. Leasehold fixed in perpetuity in 2022 from 2037 for €91.20 per year plus inflation

Layout
•	The secure communal entrance with camera surveillance provides access to the apartment via lift or stairs. Upon entering the hallway, you have access to all rooms:
•	Living room: A generous living space of approx. 22 m² with open views.
•	Kitchen:  Situated on the north side, offering a fantastic view over Sloterplas.
•	Balcony:  A spacious, south-facing balcony, perfect for relaxing in the sun.
•	Bedrooms:  Three well-proportioned bedrooms of approx. 6 m², 12 m², and 15 m².
•	Bathroom:  Equipped with a shower, toilet, and washbasin.
•	Extra  storage space: a separate private storage room on the ground floor.
•	Heating  & insulation: District heating and HR++ insulation glass at the front. 

Location & Surroundings
The apartment is ideally located within walking distance of Sloterplas and Sloterpark, perfect for recreation, walking, and sports. Runners can enjoy the popular 6 km running track around Sloterplas. Nearby are sports clubs, the Sloterparkbad swimming pool, and various gyms.

For shopping, dining, and entertainment, the Osdorpplein shopping centre is just around the corner, offering a wide range of shops, restaurants, and the Meervaart Theatre.

Excellent transport connections:
•	Tram, metro, and bus services provide access to the city centre and  Schiphol.
•	Cycle  to Vondelpark in just 15 minutes.
•	Easy  access to the A4, A9, and A10 motorways.
•	Affordable  parking in the area with no long waiting list for a permit.

Key Features
•	Spacious and bright apartment (approx. 78 m², NEN measurement report)
•	Private storage room on the ground floor
•	Leasehold fixed in perpetuity in 2022 (from 2037 €91.20 per year plus inflation)
•	Partly HR++ insulation glass
•	Active and financially healthy Homeowners’ Association (VvE)
•	Service charges: €239.40 per month
•	Advance heating costs (district heating): €113.50 per month
•	Delivery can be fast

Looking for a spacious apartment with three bedrooms and a fantastic view? Schedule a viewing today!

Kenmerken