Beschrijving

***English below***

Een hoogwaardig afgewerkte gezinswoning met eigen parkeerplaats, gelegen in een rustige en kindvriendelijke straat in De Aker in Amsterdam.

Deze stijlvolle eengezinswoning uit 2003 combineert ruimte met een moderne uitstraling. Met circa 120 m² woonoppervlakte, een luxe keuken met inbouwapparatuur en ledverlichting, een visgraatvloer met vloerverwarming, strak gestucte wanden en een moderne badkamer is dit een woning waar u zó in kunt. Bovendien beschikt de woning over 11 zonnepanelen en is het energielabel A+.

Ligging en bereikbaarheid
De woning bevindt zich in een autovrije straat in de kindvriendelijke wijk De Aker, een groene buurt die geliefd is bij gezinnen. Op loopafstand ligt winkelcentrum De Dukaat, met onder andere een grote supermarkt, speciaalzaken, een fietsenwinkel en een gezondheidscentrum met apotheek.

De bereikbaarheid is uitstekend. Tram 1 brengt u in circa 25 minuten naar hartje Amsterdam. Via de nabijgelegen uitvalswegen A4, A5, A9 en A10 bereikt u bovendien eenvoudig Haarlem, Hoofddorp, Amstelveen of Schiphol. Voor ontspanning in de natuur liggen het Nieuwe Meer, het Amsterdamse Bos en de Sloterplas binnen handbereik.

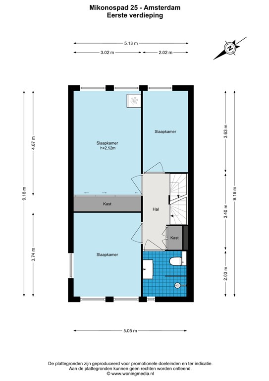
Indeling

Begane grond
Via de entree komt u binnen in de hal met toegang tot het toilet en de woonruimte. De woonkamer is een echte eyecatcher: strak en modern uitgevoerd, met gestucte wanden, comfortabele vloerverwarming en een prachtige visgraatvloer. De grote raampartijen en kunststof schuifpui zorgen voor veel lichtinval en versterken het ruimtelijke gevoel.

Aan de achterzijde bevindt zich de moderne keuken, voorzien van diverse inbouwapparatuur en sfeervolle ledverlichting. De grote 5-pits inductie kookplaat is perfect voor wie graag kookt en hedendaags design weet te waarderen.

Via de woonkamer bereikt u de fijne achtertuin, waar u in alle rust kunt genieten van het buitenleven. Achterin de tuin staat een schuur met elektra, ideaal voor fietsen en extra opslag. De woning beschikt daarnaast over een eigen parkeerplaats.

Eerste verdieping
Op de eerste verdieping bevinden zich drie goed bemeten slaapkamers, ideaal te benutten als kinder-, werk- of logeerkamer. De badkamer is luxe uitgevoerd met een stijlvolle inloopdouche en modern meubel. Als extra detail zijn er Bluetooth speakers in het plafond verwerkt.

Tweede verdieping
De tweede verdieping biedt een ruime vierde slaapkamer met grote Velux kunststof dakramen, waardoor de ruimte heerlijk licht en extra ruim aanvoelt. Ideaal als ouderslaapkamer, tienerkamer of rustige thuiswerkplek.

Buitenruimte
De achtertuin is een fijne plek om te ontspannen, met voldoende ruimte voor een lounge- en eethoek. De rustige ligging in een kindvriendelijk straatje zorgt voor fijn wonen.

Erfpacht

De woning staat op erfpachtgrond van de gemeente Amsterdam. De erfpacht is afgekocht tot en met 31 januari 2049 en eeuwigdurend vastgezet onder gunstige voorwaarden volgens de Algemene Bepalingen 2016.

Bijzonderheden

Stijlvol afgewerkte eengezinswoning

Woonoppervlakte circa 120 m²

Energielabel A+

11 zonnepanelen

Vloerverwarming, visgraatvloer en gestucte wanden

Moderne keuken met inbouwapparatuur en ledverlichting

Vier slaapkamers

Luxe vernieuwde badkamer met inloopdouche
                                                                                           
Fijne tuin met schuur

Eigen parkeerplaats

Erfpacht afgekocht tot januari 2049 en daarna eeuwigdurend vastgezet (AB2016)

Oplevering in overleg

Wilt u deze woning zelf ervaren? Maak dan snel een afspraak voor een bezichtiging. U bent van harte welkom.

***English***

A high-quality family home with a private parking space, located in a quiet and child-friendly street in De Aker, Amsterdam.

This stylish family house, built in 2003, combines generous living space with a modern look and feel. With approximately 120 m² of living area, a luxury kitchen with built-in appliances and LED lighting, a herringbone floor with underfloor heating, smoothly plastered walls and a modern bathroom, this is a home you can move into right away. The property also features 11 solar panels and an energy label A.

Location and accessibility

The house is situated in a car-free street in the family-friendly neighbourhood of De Aker, a green area that is especially popular with families. Within walking distance you will find shopping centre De Dukaat, offering a large supermarket, speciality shops, a bicycle shop and a health centre with pharmacy.

Accessibility is excellent. Tram line 1 takes you to the centre of Amsterdam in approximately 25 minutes. The nearby main roads A4, A5, A9 and A10 provide easy access to Haarlem, Hoofddorp, Amstelveen and Schiphol Airport. Nature lovers will appreciate the close proximity of the Nieuwe Meer, the Amsterdamse Bos and the Sloterplas.

Layout

Ground floor
Upon entering, you step into the hallway with access to the toilet and the main living area. The living room is a real eye-catcher: sleek and modern, with smoothly plastered walls, comfortable underfloor heating and a beautiful herringbone floor that creates an elegant atmosphere. Large windows and the uPVC sliding doors to the garden bring in plenty of natural light and enhance the spacious feel.

At the rear of the house you will find the modern kitchen, equipped with various built-in appliances and atmospheric LED lighting. The large 5-zone induction hob is perfect for those who enjoy cooking and appreciate a clean, contemporary design.

From the living room you can access the pleasant backyard garden, where you can enjoy outdoor living in complete peace and privacy. At the back of the garden there is a storage shed with electricity, ideal for bicycles and additional storage. The property also comes with a private parking space.

First floor
The first floor offers three well-proportioned bedrooms, ideal as children’s rooms, a home office or guest rooms. The bathroom is luxuriously finished with a stylish walk-in shower and modern vanity unit. A special feature is the built-in Bluetooth speakers in the ceiling.

Second floor
The second floor provides a spacious fourth bedroom with large Velux uPVC roof windows, making the room wonderfully bright and giving it an extra sense of space. Ideal as a master bedroom, teenager’s room or a quiet workspace at home.

Outdoor space
The backyard garden is a great place to relax, with plenty of space for a lounge area and outdoor dining. The quiet setting in a child-friendly street contributes to a pleasant and comfortable living experience.

Leasehold

The property is situated on leasehold land owned by the municipality of Amsterdam. The leasehold has been prepaid until 31 January 2049 and has been converted to a perpetual leasehold under favourable conditions in accordance with the General Provisions 2016.

Key features

High-quality finished family home, built in 2003

Approximately 120 m² of living space

Energy label A+

11 solar panels

Underfloor heating, herringbone flooring and smoothly plastered walls

Modern kitchen with built-in appliances and LED lighting

Four bedrooms

Luxury renovated bathroom with walk-in shower, vanity unit and Bluetooth speakers

Pleasant garden with storage shed

Private parking space

Ground lease bought off until 31 January 2049 - converted to perpetual leasehold (GP2016)

Completion date in consultation

Would you like to experience this home for yourself? Contact us to schedule a viewing. You are very welcome.

Kenmerken