Beschrijving
*** English below ***
De 20-meter diepe patiowoning combineert op unieke wijze ruimte, privacy en licht. De diepte van de woning creëert een indrukwekkend gevoel van ruimte. De centraal gelegen patio biedt een rustige buitenruimte, zorgt voor natuurlijk licht en geeft een gevoel van openheid, terwijl de omliggende muren volledige privacy bieden. Ideaal voor wie op zoek is naar een bijzondere en ruimtelijke leefomgeving.
Met een woonoppervlakte van circa 115 m² en een inpandige berging van circa 10 m², bevindt de woning zich op een gunstige locatie in het populaire Amsterdam Nieuw Sloten. De woning beschikt over twee ruime slaapkamers (mogelijkheid tot een derde), een moderne badkamer, en een afgesloten achterom. Het huis is uitstekend onderhouden en voorzien van nieuwe, onderhoudsarme kunststof kozijnen met HR++ isolatieglas (2024). Op de begane grond is eenvoudig een extra slaapkamer en badkamer te realiseren.
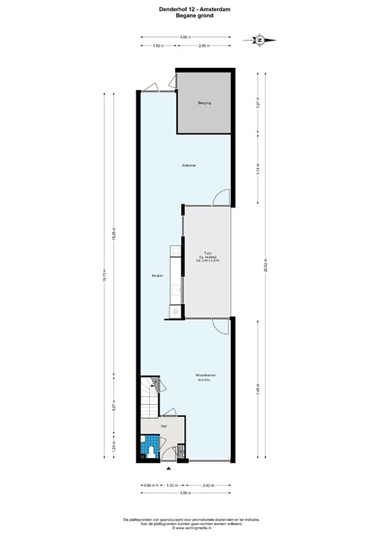
Indeling: Begane grond: Bij binnenkomst kom je in de hal met het toilet, de meterkast en de trap naar de eerste verdieping. De royale woonkamer biedt door de diepte van 20 meter een prachtig ruimtelijk gevoel. Aan de voorzijde bevindt zich de gezellige patio van 15 m², ideaal voor ontspanning in volledige privacy. De centraal gelegen open keuken vormt het hart van het huis en verbindt de woon- en eetkamer op natuurlijke wijze. De inpandige berging van 10 m² is achterom bereikbaar via een brede steeg met afsluitbaar stalen hek.
Eerste verdieping: De overloop geeft toegang tot twee ruime slaapkamers en een comfortabele badkamer. Het uitzicht op de omliggende groene daken maakt deze verdieping bijzonder aangenaam.
Woonomgeving en bereikbaarheid: Denderhof 12 ligt in een rustige straat met uitsluitend bestemmingsverkeer in de geliefde wijk Nieuw Sloten. De wijk is veilig, groen en kindvriendelijk, met goede scholen, kinderopvang en veel sportfaciliteiten binnen handbereik. Voor boodschappen kun je terecht op het nabijgelegen Belgiëplein, en het Vondelpark ligt op slechts 15 minuten fietsen. Openbaar vervoer (o.a. tram 2 naar de stad en bus 369 naar Schiphol) en uitvalswegen zoals de A4, A9 en A10 zijn dichtbij.
Erfpacht: De woning staat op erfpachtgrond van de gemeente Amsterdam, waarbij het huidige tijdvak is afgekocht tot 31-08-2044. Er is een aanvraag bevestigd voor gunstige voorwaarden na deze periode.
Deze woning biedt een unieke kans om bijzonder te wonen in een groene wijk in Amsterdam met uitstekende voorzieningen en bereikbaarheid.
Kenmerken:
· Woonoppervlak 115 m²
· Bouwjaar 1996
· 2 slaapkamers (3de slaapkamer mogelijk)
· Moderne badkamer
· Energielabel A
· Erfpacht afgekocht tot 31-08-2044, aanvraag naar overstap Eeuwigdurende erfpacht tijdig gedaan
· Oplevering in overleg
The 20-metre-deep patio house uniquely combines space, privacy, and light. The depth of the house creates an impressive sense of space. The centrally located patio offers a tranquil outdoor area, allows natural light to flood in, and provides a feeling of openness, while the surrounding walls ensure complete privacy. Ideal for those seeking a distinctive and spacious living environment.
With a living area of approximately 115 m² and an indoor storage room of around 10 m², the house is situated in a convenient location in the popular Amsterdam Nieuw Sloten. The property features two spacious bedrooms (with the possibility of a third), a modern bathroom, and a private rear access. The house is in excellent condition and fitted with new, low-maintenance UPVC window frames with HR++ double glazing (2024). On the ground floor, an additional bedroom and bathroom can easily be added.
Layout:
Ground floor: Upon entering, you are welcomed into the hall with a toilet, utility cupboard, and stairs to the first floor. The generous living room, with its 20-metre depth, creates a stunning sense of space. At the front, the cosy 15 m² patio is perfect for relaxing in total privacy. The centrally located open-plan kitchen is the heart of the home and naturally connects the living and dining areas. The 10 m² indoor storage is accessible via the rear, through a wide alley with a lockable steel gate.
First floor: The landing gives access to two spacious bedrooms and a comfortable bathroom. The view of the surrounding green roofs makes this floor particularly pleasant.
Surroundings and accessibility:
Denderhof 12 is located in a quiet street with only local traffic, in the beloved Nieuw Sloten neighbourhood. The area is safe, green, and family-friendly, with excellent schools, childcare, and many sports facilities close by. For shopping, Belgium Square is nearby, and Vondelpark is just a 15-minute bike ride away. Public transport (including tram 2 to the city centre and bus 369 to Schiphol) and major roads such as the A4, A9, and A10 are easily accessible.
Leasehold:
The property is on leasehold land from the Municipality of Amsterdam, with the current period paid off until 31-08-2044. An application for favourable conditions after this period has been confirmed.
This house offers a unique opportunity to live in a special home in a green district of Amsterdam with excellent facilities and accessibility.
Key features:
Living area 115 m²
- Year of construction: 1996
- 2 bedrooms (third bedroom possible)
- Modern bathroom
- Energy label A
- Leasehold paid off until 31-08-2044
- Delivery in consultation
Plattegronden
Denderhof 12 - Amsterdam - Begane_grond - 2D.jpg
Denderhof 12 - Amsterdam - Begane_grond - 3D _1.jpg
Denderhof 12 - Amsterdam - Begane_grond - 3D _2.jpg
Denderhof 12 - Amsterdam - Eerste verdieping - 2D.jpg
Denderhof 12 - Amsterdam - Eerste verdieping - 3D _3.jpg
Denderhof 12 - Amsterdam - Eerste verdieping - 3D _4.jpg
Denderhof 12 - Amsterdam - NEN plattegrond.jpg