Beschrijving

***English below***
Mooi gelegen aan de Brusselsingel bevindt zich deze royale en goed ingedeelde hoekwoning met 3 slaapkamers en een zonnige achtertuin op het zuiden. De woning kenmerkt zich door een lichte woonkamer dankzij een grote raampartij en extra hoog plafond (3,15 m). De royale woning heeft de voordeur aan de Brusselsingel en een zij-ingang met overkapping in de Schaarbeekstraat. Welkom in dit heerlijke familiehuis!

De woning, gebouwd in 1995, biedt een uitstekende basis voor jou om er een moderne en eigentijdse uitstraling aan te geven. Dit is dé kans om te wonen op een ideale locatie omgeven door groen en met alle voorzieningen in de buurt. Openbaar parkeren en elektrisch laden kan direct voor de woning. 

Indeling
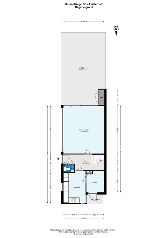
Begane Grond
Ruime entree met toegang tot toilet, trap naar de tweede verdieping, tuingerichte woonkamer en separate keuken. De tuin beschikt over fraaie beplanting en een terras en is ook achterom bereikbaar door een afsluitbare poort. Er is een zonnescherm over de gehele breedte van de woonkamer, ideaal om ongewenste hitte in de zomer buiten te houden. Vanuit de keuken is er een deur naar de berging. De zij-ingang met portiek  in de Schaarbeekstraat geeft direct toegang tot de inpandige berging. De berging kan gebruikt worden voor het stallen van fietsen of kan worden benut voor praktijk aan huis. 


Eerste verdieping
De overloop op de eerste verdieping leidt naar een over de gehele breedte van de woning gelegen lichte ouderslaapkamer (ca 16,5 m²), voorzien van een inbouwkast. Ook bevindt zich op deze verdieping de goed bemeten badkamer met wastafel, douche en toilet. 

Tweede verdieping
Grote overloop met veel lichtinval door openslaande deuren naar Frans balkon. Hier bevinden zich nog eens 2 goede slaapkamers van gelijkwaardige grootte (circa 8 m²) waarvan een met handige wastafel. Op deze verdieping bevindt zich ook een ruimte met de cv-installatie en een aansluiting voor de wasmachine. Deze kamer biedt bovendien volop opbergruimte.

Woonomgeving en bereikbaarheid
De  woning is rustig gelegen in de goede en groene wijk Nieuw Sloten. Uitstekende openbaar vervoer voorzieningen bevinden zich op loopafstand (zoals tram 2 naar Amsterdam CS en bus 369 naar Schiphol). Dichtbij zijn belangrijke uitvalswegen zoals de A4 naar Schiphol, A9 en A10. Het Vondelpark ligt op circa 15 minuten fietsafstand en in je vrije tijd is het heerlijk uitwaaien bij de Oeverlanden en de strandjes van De Nieuwe Meer of natuurpark De Vrije Geer. Dit natuurgebied maakt onderdeel uit van de Groene As, de ecologische verbindingszone met aantrekkelijk landschap tussen Amstelland en Spaarnwoude. Nieuw Sloten staat bekend als een veilige en kindvriendelijke wijk met veel speelvoorzieningen, goede scholen, kinderdagverblijven en volop sportmogelijkheden zoals hockey, voetbal, golf rugby, judo, squash, wielerbaan en maneges. Het nabij gelegen winkelcentrum Belgiëplein heeft volop winkels voor de dagelijkse boodschappen en diverse eetgelegenheden.

Erfpacht
De woning ligt op erfpachtgrond van de gemeente Amsterdam. De canon voor voortdurende erfpacht is afgekocht tot en met 31-08-2044.
 
Highlights

- Bouwjaar 1995
- Energielabel B
- Circa 98 m² woonoppervlakte (meetrapport aanwezig)
- Tuingerichte woonkamer met hoog plafond (3,15 m) en separate keuken
- 3 ruime slaapkamers  
- Tuin op het zuiden
- Inpandige berging (stallen van fietsen / praktijk aan huis)
- Kindvriendelijke wijk
- Openbaar parkeren 
- Recentelijk bouwkundig rapport aanwezig
- Niet zelfbewoningsclausule, As is where is clausule, Ouderdomsclausule, toelichtingsclausule NEN2580m 
- Notaris naar keuze koper, mits conform Model Ring Amsterdam

**English**
Beautifully situated on Brusselsingel, this spacious and well-laid-out end-of-terrace house features 3 bedrooms and a sunny south-facing backyard. The house is characterized by a bright living room with numerous windows and an extra high ceiling (3.15 m). This generous home has its main entrance on Brusselsingel and a covered side entrance on Schaarbeekstraat. Welcome to this delightful family home!

Built in 1995, the house offers an excellent basis for you to give it a modern and contemporary look. This is the perfect opportunity to live in an ideal location surrounded by greenery and with all amenities nearby. Public parking and electric charging are available directly in front of the house.

Layout

Ground Floor
Spacious entrance hall with access to the toilet, stairs to the second floor, garden-facing living room, and separate kitchen. The garden features beautiful plants and a terrace and can also be accessed from the back through a lockable gate. There is an awning across the entire width of the living room, ideal for keeping unwanted heat out in the summer. From the kitchen, there is a door to the storage room. The side entrance with a portico on Schaarbeekstraat provides direct access to the indoor storage room, which can be used for storing bicycles or as a home office.

First Floor
The landing on the first floor leads to a bright master bedroom (approx. 16.5 m²) spanning the entire width of the house and equipped with a built-in wardrobe. Also on this floor is the well-sized bathroom with a sink, shower, and toilet.

Second Floor
Large landing with plenty of natural light through French doors to a Juliette balcony. Here, you will find 2 additional good-sized bedrooms (approximately 8 m² each), one of which has a convenient sink. This floor also has a room with the central heating system and a washing machine connection. This room also offers ample storage space.

Living environment and accessibility
The house is quietly located in the good and green Nieuw Sloten district. Excellent public transport facilities are within walking distance (such as tram 2 to Amsterdam CS and bus 369 to Schiphol). Major highways such as the A4 towards Schiphol, A9 and A10 are nearby. The Vondelpark is approximately 15 minutes by bike and in your free time you can get a breath of fresh air at the Oeverlanden and the beaches of De Nieuwe Meer or De Vrije Geer nature park. This nature reserve is part of the Green Axis, the ecological connecting zone with attractive landscape between Amstelland and Spaarnwoude. Nieuw Sloten is known as a safe and child-friendly neighborhood with many play facilities, good schools, daycare centers and plenty of sports options such as hockey, football, golf, rugby, judo, squash, cycling track and riding schools. The nearby Belgiëplein shopping center has plenty of shops for daily shopping and various dining options.

Ground lease
The house is located on leasehold land from the municipality of Amsterdam. The ground rent for continuous leasehold has been bought off until 31-08-2044.

Highlights

- Year of construction 1995
- Energy label B
- Appr. 98 m² living surface (measurement report available)
- Garden-oriented living room with high ceiling (3.15 m) and separate kitchen
- 3 spacious bedrooms  
- South-facing garden
- Indoor storage (bicycle storage/practice at home)
- Child-friendly neighborhood
- Public parking 
- Recent construction report available
- Non-self-occupancy clause, As is where is clause, Old age clause, explanatory clause NEN2580m 
- Notary of the buyer's choice, provided in accordance with Model Ring Amsterdam

Kenmerken