Beschrijving

Prachtig gezinshuis, stijlvol gerenoveerd en afgewerkt met topmaterialen! 

Aan Balatonmeerlaan 43 staat deze uitzonderlijk ruime en volledig vernieuwde eengezinswoning van circa 184 m². De woning beschikt over vijf slaapkamers, twee moderne badkamers, een zonnige achtertuin, een royaal dakterras en een eigen carport. De erfpacht is eeuwigdurend afgekocht en de woning heeft energielabel A. Alles is tot in detail doordacht en met hoogwaardige materialen opnieuw opgebouwd, waardoor u hier zonder enige verbouwzorgen kunt intrekken. De woning is gelegen in de geliefde en rustige wijk De Aker, met alle dagelijkse voorzieningen binnen handbereik.

De ligging is ideaal. De omgeving is groen en rustig, met brede straten, waterpartijen en genoeg plekken om te wandelen of te ontspannen. Vanaf zowel de achterzijde als het dakterras heb je een vrij en ruimtelijk uitzicht, waardoor je overal in huis geniet van veel licht, privacy en een open gevoel.

Op loopafstand bevindt zich winkelcentrum Dukaat met diverse speciaalzaken zoals een supermarkt, bakker, slager, drogist en viswinkel. Scholen, kinderopvang en openbaar vervoer liggen op korte afstand en met tramlijn 1 ben je snel in het centrum van Amsterdam. Ook het treinstation is snel te bereiken. Wie met de auto reist, heeft snelle aansluitingen naar de A4, A5, A9 en A10. Parkeren kan altijd onder de eigen carport.

In 2020 is de woning volledig gestript en opnieuw opgebouwd. Werkelijk alles is aangepakt: van installaties tot sanitair, keuken, vloeren, deuren en afwerking. Het resultaat is een modern, energiezuinig en hoogwaardig afgewerkt huis dat direct te betrekken is. Verder is de woning uitgerust met drie airconditioners, één op iedere woonlaag, die zowel kunnen koelen als verwarmen. Ook is er vloerverwarming op alle vier woonlagen aanwezig. Op het dak liggen achttien zonnepanelen. Daarnaast is in 2022 de volledige achtertuin opnieuw aangelegd, waardoor ook de buitenruimte volledig up-to-date en onderhoudsvriendelijk is.

De keuken en al het sanitair zijn in 2021 volledig vernieuwd. De keuken is modern uitgevoerd en voorzien van hoogwaardige inbouwapparatuur, waaronder een Quooker met een 7-liter boiler. De badkamers zijn eveneens in 2021 geplaatst en hebben een luxe uitstraling met mooie materialen en een moderne afwerking. Zowel de woonkamer als de keuken zijn voorzien van een fraaie houten vloer. In de woonkamer zorgen stalen balustrades en trappen voor een bijzonder stijlvol en industrieel accent, terwijl de stalen schuifdeuren bij de keuken perfect aansluiten op de hoogwaardige uitstraling van de woning.

Bij binnenkomst op straatniveau tref je de carport, de entree, een ruime berging en de meterkast. Via de trap kom je op de eerste woonlaag, waar zich de royale woonkeuken en een ruim toilet bevinden. De woonkeuken biedt voldoende ruimte voor een grote eettafel. Via een korte trap daal je af naar het sfeervolle zitgedeelte. Hier vallen meteen het indrukwekkende 3,6 meter hoge plafond en de even hoge raampartij met schuifpui op, waardoor de woonkamer baadt in het licht en direct toegang biedt tot de zonnige achtertuin op het zuidoosten.

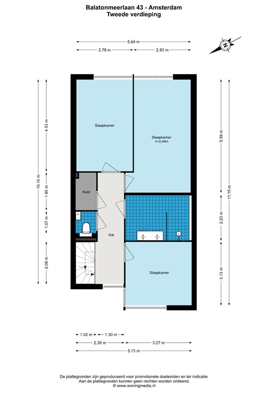
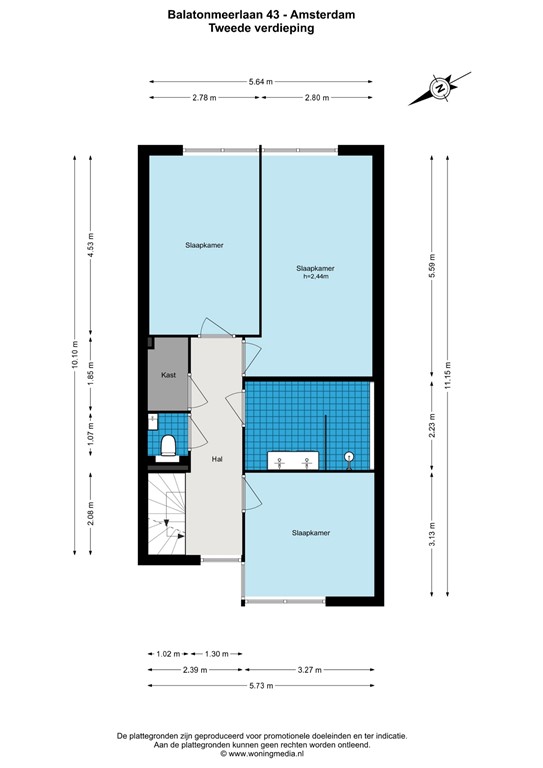
Op de tweede verdieping liggen drie grote slaapkamers, twee aan de tuinzijde en één aan de voorkant van de woning. De centrale badkamer is modern uitgevoerd met een ruime inloopdouche en een elegant wastafelmeubel met dubbele wastafel. Op deze verdieping bevinden zich tevens een separaat toilet en een praktische wasruimte met plek voor een wasmachine en droger.

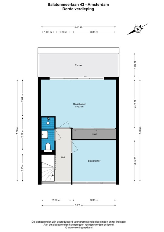
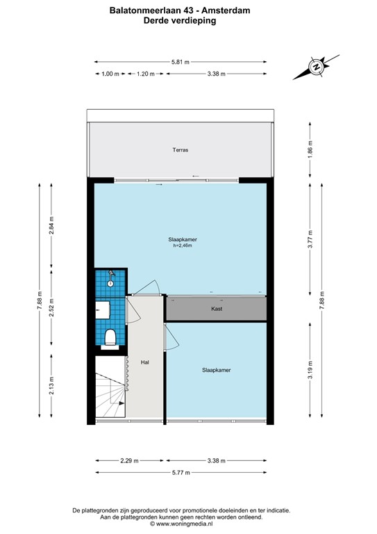
De derde verdieping biedt ruimte aan nog twee slaapkamers, een tweede badkamer met douche, wastafel en toilet, én toegang tot het heerlijke zonnige dakterras met vrij uitzicht. 

Balatonmeerlaan 43 is een woning die in alle opzichten uitblinkt: volledig vernieuwd, energiezuinig, stijlvol en bijzonder ruim. Een ideale plek voor gezinnen, thuiswerkers of iedereen die op zoek is naar extra wooncomfort en luxe. Wie deze woning binnenstapt, ervaart direct dat alles klopt. Een bezichtiging is dan ook zeker de moeite waard. De eeuwigdurend afgekochte erfpachtcanon biedt toekomstig financieel gemak. 

Bijzonderheden
•	Compleet vernieuwde en hoogwaardig afgewerkte eengezinswoning van ca. 184 m²
•	Strakke keuken voorzien van inbouwapparatuur  
•	Vijf slaapkamers en twee moderne badkamers (3 toiletten)
•	Vloerverwarming op alle woonlagen (per verdieping bedienbaar)
•	Gehele woning inclusief plafonds gestuukt
•	Zonnige achtertuin (ZO) en groot dakterras met vrij uitzicht
•	Energielabel A
•	18 zonnepanelen, vloerverwarming en airco op elke verdieping (koud en warm blazend)
•	Achtertuin volledig vernieuwd inclusief tuinafscheiding met buren
•	Eigen carport  
•	Eeuwigdurend afgekochte erfpacht
•	Rustige, groene ligging in De Aker, vlak bij winkels, scholen en OV
•	Uitstekende verbinding met tram 1 en uitvalswegen (A4/A5/A9/A10)
•	Oplevering  in overleg

Beautiful family home, stylishly renovated and finished with high-quality materials!

Located at Balatonmeerlaan 43, this exceptionally spacious and fully renovated family home offers approximately 184 m² of living space. The property features five bedrooms, two modern bathrooms, a sunny rear garden, a generous roof terrace, and a private carport. The ground lease has been perpetually bought off, and the home has an energy label A. Every detail has been carefully considered and rebuilt using high-quality materials, allowing you to move in without any renovation concerns. The property is situated in the popular and quiet De Aker neighbourhood, with all daily amenities within easy reach.

The location is ideal. The surroundings are green and peaceful, with wide streets, water features and plenty of places to walk or relax. Both the rear of the house and the rooftop terrace offer open, unobstructed views, allowing natural light, privacy and a sense of spaciousness throughout the home.

Within walking distance is the Dukaat shopping centre, which includes a supermarket, bakery, butcher, chemist and fish shop. Schools, childcare facilities and public transport are all close by, and tram line 1 takes you to the city centre of Amsterdam in no time. The train station is also easily accessible. For those travelling by car, major roads such as the A4, A5, A9 and A10 are quickly reached. Parking is always available under your own carport.

In 2020 the house was completely stripped and rebuilt. Everything was renewed: installations, bathrooms, kitchen, floors, doors and finishes. The result is a modern, energy-efficient and high-quality home that is ready to move into. The house is also equipped with three air-conditioning units, one on each living level, providing both heating and cooling. Underfloor heating is present on all four floors. Eighteen solar panels are installed on the roof. In addition, the entire back garden was completely redesigned in 2022, ensuring that the outdoor space is fully up to date and low-maintenance.

The kitchen and all sanitary facilities were fully renewed in 2021. The kitchen has a modern design and is fitted with high-quality built-in appliances, including a Quooker with a 7-litre boiler. The bathrooms, also installed in 2021, have a luxurious feel with beautiful materials and contemporary finishes. Both the living room and the kitchen feature a beautiful wooden floor. In the living room, steel railings and staircases create a stylish, industrial look, while the steel sliding doors between the kitchen and living area perfectly complement the home’s high-quality finish.

Entering at street level, you will find the carport, the entrance hall, a spacious storage room and the meter cupboard. Via the stairs, you reach the first living level, where you’ll find the spacious kitchen-diner and a generous toilet. The kitchen-diner offers ample space for a large dining table. A short staircase leads down to the atmospheric seating area. Here, the impressive 3.6-meter-high ceiling and the equally tall floor-to-ceiling sliding-door window immediately catch the eye, flooding the living room with natural light and providing direct access to the sunny southeast-facing garden. 

On the second floor you will find three large bedrooms, two overlooking the garden and one at the front of the house. The central bathroom is modern and equipped with a spacious walk-in shower and an elegant double washbasin. This floor also includes a separate toilet and a practical laundry room with space for a washing machine and dryer.

The third floor features two additional bedrooms, a second bathroom with shower, washbasin and toilet, and access to the wonderful sunny rooftop terrace with unobstructed views.

The ground lease has been bought off perpetually, offering long-term financial convenience.  

Balatonmeerlaan 43 is a home that stands out in every respect: fully renewed, energy-efficient, stylish and exceptionally spacious. An ideal place for families, home-workers or anyone seeking extra comfort and luxury. The moment you step inside, it’s clear that everything is just right. A viewing is therefore highly recommended.

Key Features
• Completely renovated and high-quality finished family home of approx. 184 m²
• Sleek kitchen fitted with built-in appliances
• Five bedrooms and two modern bathrooms (3 toilets)
• Underfloor heating on all floors (individually controllable per floor)
• Entire home, including ceilings, professionally plastered
• Sunny rear garden (south-east facing) and large roof terrace with open views
• Energy label A
• 18 solar panels, underfloor heating and air conditioning on every floor (heating and cooling)
• Fully renovated rear garden, including new fencing with neighbouring properties
• Private carport
• Perpetually bought-off ground lease
• Quiet, green location in De Aker, close to shops, schools and public transport
• Excellent connections to tram line 1 and major roads (A4/A5/A9/A10)
• Handover in consultation

Kenmerken