Description

**English below**
 Strak 3 kamer appartement met zeer lichte woonkamer, 2 ruime slaapkamers en aan beide zijden een balkon. De woning is voorzien van kunststof kozijnen. Nieuw  sanitair (2023), mooie doorlopende eikenhouten vloer in hal, woonkamer en slaapkamers, strak gestucte muren en een staal look haldeur.  Dit moderne en comfortabele huis is instapklaar en ideaal voor starters!

Het complex is voorzien is van een afgesloten entree met aan de buitenzijde brievenbussen en een intercom. Het appartement ligt op de derde verdieping. Op de begane grond bevindt zich de bijbehorende zeer grote berging van ruim 10 m². Gratis openbaar parkeren.  

Indeling
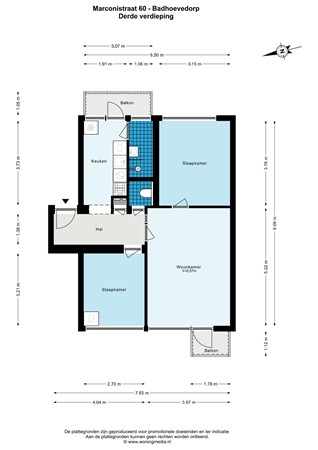
Royale hal met garderobe. Aan de voorzijde bevindt zich een ruime slaapkamer en een woonkamer met balkon. Veel lichtinval door grote raampartij. De woonkamer is voorzien van een stijlvolle en zeer praktische op maat gemaakte muurbank. De woonkamer en hal hebben een verlaagd plafond met mooie inbouwspots. De radiator is voorzien van een ombouw. Vanuit de woonkamer is de tweede slaapkamer aan de achterzijde te bereiken. De keuken is voorzien van een 4 pits gasstel, afzuigkap, oven, opbergruimte en er is een wasmachineaansluiting. Vanuit de keuken bereik je direct het balkon aan de achterzijde. De badkamer en het toilet zijn recentelijk vernieuwd. Kortom deze heeft alles wat je nodig hebt en is direct te betrekken!

Woonomgeving en bereikbaarheid
Het appartement ligt gunstig vlakbij het winkelcentrum, horecagelegenheden, diverse scholen, sportfaciliteiten, openbaar vervoer voorzieningen en uitvalswegen A9, A4 en ringweg A10. 

VvE:
Vereniging van Eigenaren Marconistraat 6-102. Professioneel beheerd door Newomij. Servicekosten € 123,90 per maand

Bijzonderheden
-	Woonoppervlak  circa 61 m² (NEN2580 meetrapport aanwezig)
-	 2 balkons (voor- en achterzijde)
-	Royale  berging begane grond (circa 10 m²)
-	Bouwjaar  omstreeks 1960
-	Instapklaar
-	Nieuw  sanitair in 2023
-	Strak  gestucte muren
-	Eiken houten vloer in hal, slaapkamers en woonkamer 
-	Kunststof kozijnen met dubbele beglazing
-	Servicekosten € 123,90 per maand
-	Professioneel beheerde VvE (Newomij)
-	Eigen grond (geen erfpacht)
-	Oplevering in overleg

**English version**
Sleek 3-room apartment with a very bright living room, 2 spacious bedrooms and a balcony on both sides. The property features PVC window frames. Including new sanitary facilities (2023), continuous oak floor in the hall, living room and bedrooms, smooth plastered walls and a steel-look hallway door.  This modern and comfortable house is ideal for first-time buyers!

The complex has a secured entrance with mailboxes and an intercom on the outside. The apartment is located on the third floor. On the ground floor there is a very large storage room of over 10 m². Free public parking.  

Layout
Spacious hall with wardrobe. At the front there is a spacious bedroom and a living room with balcony. Lots of light through large windows. The living room has a stylish and very practical custom-made wall sofa. The living room and hall have a suspended ceiling with beautiful recessed spotlights. The radiator is equipped with a conversion. The second bedroom at the rear can be reached from the living room. The kitchen is equipped with a 4-burner gas stove, extractor hood, oven, storage space and a washing machine connection. From the kitchen you directly access the balcony at the rear. The bathroom and toilet have recently been renovated. In short, the property is turnkey and has everything you need. 

Living environment and accessibility
The apartment is conveniently located close to the shopping center, restaurants, various schools, sports facilities, public transport facilities and highways A9, A4 and A10. 

HOA:
Association of Owners Marconistraat 6-102. Professionally managed by Newomij. Service costs € 123,90 per month

Particularities
- Living area approximately 61 m² (NEN2580 measurement report available)
- 2 balconies (front and rear)
- Spacious storage room on the ground floor (approximately 10 m²)
- Built around 1960
- Turnkey
- New sanitary facilities in 2023
- Smooth plastered walls
- Oak wooden floor in hall, bedrooms and living room 
- PVC window frames with double glazing
- Service costs € 123.90 per month
- Professionally managed VvE (Newomij)
- Freehold property (no leasehold)
- Delivery in consultation

Features