Description

*English version below* Een tophuis voor starters: Hoekappartement op de begane grond in het gewilde Nieuw Sloten! De woning beschikt over 2 ruime slaapkamers, een heerlijke badkamer, een leefkeuken en een royale woonkamer. Deze heeft toegang tot de beschutte, op het zuiden gelegen tuin van circa 17 m² , die veel privacy biedt. Aangrenzend is de gemeenschappelijke en afgesloten binnentuin waar je heerlijk kunt ontspannen en kinderen veilig kunnen buitenspelen. Er is een praktische externe berging van circa 5 m², ideaal voor het opbergen van fietsen, scooters, motoren en andere spullen. De woning heeft een centrale ligging, dicht bij het winkelcentrum Belgiëplein voor alle dagelijkste boodschappen en is goed bereikbaar met het openbaar vervoer. Daarnaast vind je op korte afstand het trendy café Radion en diverse goed onderhouden speelplekken, wat deze buurt voor iedereen aantrekkelijk maakt.

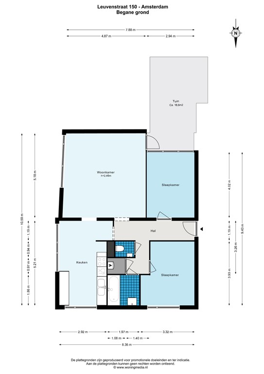
Globale indeling
Vanaf de gemeenschappelijke entree met brievenbussen en bellentableau kom je binnen in de woning. De ruime gang geeft toegang tot alle vertrekken, waaronder een slaapkamer aan de voorzijde en een slaapkamer aan de achterzijde met uitzicht op de tuin. De leefkeuken biedt volop werk- en opbergruimte en heeft plaats voor een gezellige eettafel. De lichte woonkamer heeft direct toegang naar de tuin, ideaal om van het buitenleven te genieten. Door de hoekligging valt er veel natuurlijk licht binnen en geniet je van een prachtig, vrij uitzicht. De ruime badkamer is voorzien van een ligbad met douche, een wastafelmeubel en sfeervolle lichtspots in het plafond. Parkeren is geen enkel probleem; voor de deur is er volop gelegenheid voor openbaar parkeren met een parkeervergunning (laag tarief en eenvoudig te verkrijgen)

Woonomgeving en bereikbaarheid
De woning bevindt zich in de fijne Amsterdamse wijk Nieuw Sloten: een veilige, groene en kindvriendelijke omgeving met veel speelplekken, goede scholen, kinderdagverblijven en volop sportmogelijkheden zoals hockey, voetbal, golf, rugby, judo, een wielerbaan en squash. Voor dagelijkse boodschappen ligt het Belgiëplein met diverse winkels om de hoek. Het Vondelpark bereik je binnen 10 minuten fietsen. Openbaar vervoer is op loopafstand beschikbaar, waaronder tram 2 en bus 18 naar Amsterdam Centraal Station en bus 369 naar Schiphol. De locatie is ook gunstig gelegen ten opzichte van belangrijke uitvalswegen zoals de A4, A5, A9 en A10, evenals Schiphol. In je vrije tijd kun je heerlijk ontspannen bij de Oeverlanden, de strandjes van de Nieuwe Meer of een wandeling maken in het natuurgebied de Vrije Geer. Deze natuurgebieden maken deel uit van de Groene As, een ecologische verbindingszone die het prachtige landschap tussen Amstelland en Spaarnwoude verbindt.

Erfpacht
De woning valt onder het voortdurende erfpacht van de gemeente Amsterdam. De erfpacht is afgekocht tot 31 augustus 2042. Er is een Persoonlijk Informatie Pakket voor overstap naar Eeuwigdurende erfpacht aanwezig.

Bijzonderheden:
•	Woonoppervlakte ca. 83 m² (NEN2580 meetrapport aanwezig)
•	2 royale slaapkamers  
•	Achtertuin ca 17 m² (Zuiden) achterom bereikbaar
•	Afgesloten gemeenschappelijke binnentuin (veilig buiten spelen) (kosten gezamenlijk onderhoud ca € 36,- per jaar
•	Externe berging (ca 5 m²)
•	Energielabel B
•	Erfpacht afgekocht tot 31-08-2042 
•	Actieve VVE gebouw (B-Blok Leuvenstraat 108-158) , servicekosten € 199,82 per maand 
•	Oplevering kan snel
•	Niet-zelfbewoningsclausule van toepassing
•	Notariskeuze voor koper volgens het Model Ring Amsterdam

English version: A Top Home for Starters: Corner Apartment on the Ground Floor in the Desirable Nieuw Sloten! This property features 2 spacious bedrooms, a lovely bathroom, a living kitchen, and a generous living room that provides access to the sheltered south-facing garden of approximately 17 m², offering plenty of privacy. Adjacent is the communal and secured inner garden, a wonderful place to relax and where children can play safely outdoors. There is a practical external storage space of about 5 m², ideal for storing bicycles, scooters, motorcycles, and other belongings. The home has a central location, close to the Belgium Square shopping center for all your daily needs, and is easily accessible by public transport. Additionally, the trendy café Radion and several well-maintained playgrounds are just a short distance away, making this neighborhood attractive for everyone.

Overall Layout
Entering the property from the communal entrance with mailboxes and intercom, you will find a spacious hallway that provides access to all rooms, including a bedroom at the front and a bedroom at the back with garden views. The living kitchen offers plenty of workspace and storage, along with space for a cozy dining table. The bright living room has direct access to the garden, perfect for enjoying the outdoors. Due to the corner location, ample natural light floods the interior, and you can enjoy a beautiful, unobstructed view. The spacious bathroom is equipped with a bathtub with a shower, a vanity unit, and ambient lighting in the ceiling. Parking is not an issue; there is ample opportunity for public parking in front of the door with a parking permit (low cost and easy to obtain).

Living Environment and Accessibility
The property is located in the pleasant Amsterdam neighborhood of Nieuw Sloten: a safe, green, and child-friendly area with many playgrounds, good schools, daycare centers, and plenty of sports facilities such as hockey, soccer, golf, rugby, judo, a cycling track, and squash. For daily shopping, the Belgium Square with various stores is around the corner. Vondelpark is accessible within a 10-minute bike ride. Public transport is available within walking distance, including tram 2 and bus 18 to Amsterdam Central Station, as well as bus 369 to Schiphol. The location is also conveniently situated near major highways such as the A4, A5, A9, and A10, as well as Schiphol Airport. In your free time, you can relax at the Oeverlanden, the beaches of the Nieuwe Meer, or take a walk in the nature reserve de Vrije Geer. These nature areas are part of the Green Axis, an ecological corridor that connects the beautiful landscapes between Amstelland and Spaarnwoude.

Ground Lease
The property is subject to the continuous ground lease of the municipality of Amsterdam. The ground lease has been bought off until August 31, 2042. A Personal Information Package for the transition to perpetual ground lease is available.

Special Features:
•	Living area approx. 83 m² (NEN2580 measurement report available)
•	2 spacious bedrooms
•	South-facing backyard appr. 17 m², accessible from the rear
•	Secured communal inner garden (safe outdoor play) (maintenance costs approx. € 36 per year)
•	External storage (approx. 5 m²)
•	Energy label B
•	Ground lease bought off until 31-08-2042
•	Active HOA for the building (B-Block Leuvenstraat 108-158), service costs €199.82 per month
•	Quick delivery possible
•	Non-self-occupancy clause applicable
•	Buyer’s choice of notary according to the Model Ring Amsterdam

Features